一種緊湊自動沖壓線“T 形”移動伺服壓力機http://www.szxxys.com/工作臺方案
近年來,隨著汽車產業尤其是新能源汽車產業的高速發展,推動了汽車車身覆蓋件生產方式從手工生產的3 ~5SPM,提高到機器人自動化沖壓生產的12SPM,沖壓專用搬運機器人的成功開發與應用,使得高速智能自動沖壓生產達到15SPM。同時伴隨著汽車主機廠對中小型沖壓零件需求的猛增,現有汽車零部件企業的產能受限,這也促使相關企業積極對現有沖壓裝備進行自動化、智能化升級改造,提高沖壓生產線自動化水平,提升沖壓效率。
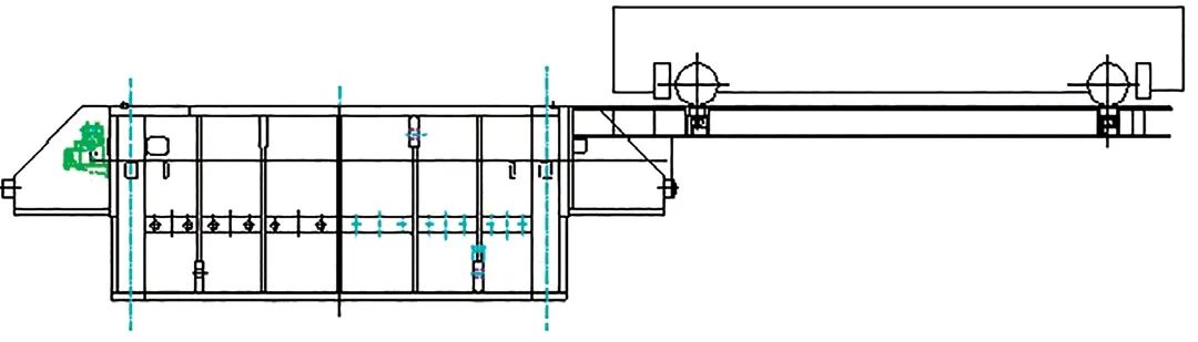
大部分零部件企業受限于現有生產車間的空間,在沖壓線自動化升級改造時,需考慮移動工作臺的開出方式,而該類型的沖壓生產線往往采用的是兩臺移動工作臺單側“T 形”移動的方式,如圖1 所示。
迅準壓力機

圖1 手工沖壓線單側開出“T 形”移動工作臺
沖壓線中壓力機“T 形”移動工作臺均在壓力機同一側前后移動的導軌上,如圖2 所示。移動工作臺底部安裝有可沿左開導軌運動的左右滾輪以及可沿前后導軌運動的前后滾輪。
迅準壓力機

圖2 一般沖壓線“T 形”移動工作臺的移動方式
如圖3 所示,承載模具的工作臺從壓力機內沿著左開導軌方向移動到達前后導軌位置后,左右滾輪下方的導軌在地面上安裝的頂起油缸的作用下,下降一定高度后,工作臺落下使前后移動輪子接觸前后移動導軌。換向后移動工作臺沿著前后導軌的方向移動至前后導軌一端,到位后檢測開關發出信號,此工作臺停止后可以進行更換模具工作。位于前后導軌另一端的另一個已經換好新模具的工作臺向中間移動,到達換向位置后,左右滾輪下方的導軌在頂起油缸作用下,下降一定高度,移動工作臺沿著左開導軌向壓力機內移動,到位后檢測開關發出信號,此工作臺完成定位,從而完成模具更換過程。
迅準壓力機

圖3 “T 形”移動工作臺滾輪“T 形”換向示意圖
從圖1 中,我們不難看出,按照常規布置存在以下問題:沖壓線壓力機的間距需要大于兩個移動工作臺的距離,假設生產線為四點沖壓線,移動工作臺前后尺寸為2500mm,移動工作臺之間間距為200 ~400mm(考慮人員通行需求,計算時取300mm)。2 臺壓力機中心距L =2500×3 +300×3=8400mm。
⑴一般壓力機間的自動化送料裝置采用機器人送料,距離一般為6500 ~7500mm,單雙臂高速機械手送料距離為5000 ~6600mm,壓力機間距為8400mm,這無論對機器人送料還是單雙臂機械手送料來講都大,需要在壓力機間設置兩個機器人及相應的過渡皮帶機,或者將機器人底座設置為滑移裝置,都會對整線生產節拍產生不利影響,且對生產線的自動化升級造成額外的成本。
⑵一臺工作臺移至前后導軌的一端后,另一臺工作臺才能開始移動,影響整線ADC 時間,對整線生產效率的提高產生不利影響。
⑶壓力機的間距較大,整線占地面積增大,增加廠房成本。
緊湊自動沖壓線“T 形”移動工作臺行走機構
為了解決上述問題,本文提出了一種自動沖壓線系統及移動工作臺移動方案。減小了單側開出“T形”移動工作臺的壓力機間距,滿足了壓力機間的自動化送料裝置(機器人或機械手)送料距離(小于6500mm),確保了在兩臺壓力機間只用一個機器人或機械手即可實現沖壓件的搬運工作,提高了自動沖壓線的整線節拍。
“T 形”移動工作臺由工作臺板、小車體、前后滾輪、左右滾輪、驅動系統等組成。工作臺板上開有“T 形”槽、頂料孔,通過螺釘、固定銷與小車體連成一體,保證了生產所需的強度和剛度。小車驅動采用電動方式,電動驅動由電機、減速箱、齒輪、聯軸器等組成,通過協調控制前后、左右滾輪的運動,達到驅動小車定向移動的目的。移動工作臺結構如圖4、圖5 所示,導軌上設置“T 形”移動工作臺左右移動滾輪頂起油缸。
迅準壓力機

圖4 “T 形”移動工作臺結構圖(俯視圖)
迅準壓力機

圖5 “T 形”移動工作臺結構圖(主視圖)
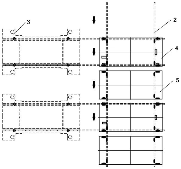
采用新方案沖壓線的壓力機“T 形”移動工作臺的前后導軌相互連接在一起,為整體共用式導軌,所有移動工作臺可在前后導軌上移動,如圖6 所示。這樣沖壓線相鄰壓力機中心距可以大大縮短。圖中:1為左右移動導軌,2 為前后移動共用導軌,3 為壓力機底座,4 為一個換模狀態“T 形”移動工作臺,5為在壓力機內沖壓的“T 形”移動工作臺,6 為地面上設有“T 形”移動工作臺左右到位檢測裝置,每個換向工位的左右兩側分別設有左右開到位檢測裝置、前開到位檢測裝置,移動工作臺上設有檢測行程開關,所述檢測行程開關與左右開到位檢測裝置、前開到位檢測裝置配合,所述檢測行程開關、左右開到位檢測裝置、前后開到位檢測裝置分別與控制系統連接。
迅準壓力機

圖6 緊湊自動沖壓線“T 形”移動工作臺導軌布置
緊湊自動沖壓線“T 形”移動工作臺工作原理
采用上述技術方案,“T 形”移動工作臺工作時:
步驟1:如圖7 所示,首先緊湊自動沖壓線所有位于壓力機外側的“T 形”移動工作臺4 已經放置好待生產的模具,壓力機將已完成生產的模具合模,并將模具放置在工作臺5 上,工作臺5 開始沿著左開導軌向右移動。
迅準壓力機

圖7 緊湊自動沖壓線“T 形”移動工作臺工作步驟1
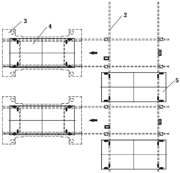
步驟2:如圖8 所示,當所有緊湊自動沖壓線的工作臺5 同時移動至換向工位時,位于換向工位一側的左右開到位檢測裝置碰觸到移動工作臺上相應的檢測行程開關,電氣控制器接收信號,工作臺停止移動,頂起油缸緩慢落下,左右移動滾輪脫離導軌,前后移動滾輪接觸前后移動導軌,此時所有工作臺4、工作臺5 在前后導軌上依次間隔排布。
迅準壓力機

圖8 緊湊自動沖壓線“T 形”移動工作臺工作步驟2
步驟3:沖壓線所有壓力機的“T 形”移動工作臺前后同步移動,當所有工作臺4 移動至換向工位時,位于換向工位另一側的檢測裝置碰觸到移動工作臺上相應的檢測行程開關,電氣控制器接收信號,工作臺停止移動,如圖9 所示。
迅準壓力機

圖9 緊湊自動沖壓線“T 形”移動工作臺工作步驟3
步驟4:頂起油缸頂起工作臺左右移動的滾輪,所有工作臺4 沿左開導軌向壓力機內移動,到達指定位置后壓力機上的左右開到位檢測裝置碰觸到移動工作臺上相應的檢測行程開關,電氣控制器接收信號,工作臺停止移動,完成整線的移動工作臺更換。
驗證總結
某汽車沖壓配套企業采用手工沖壓線從事汽車結構件生產數十年,隨著新能源汽車的高速發展,手工沖壓線的效率無法滿足市場的需求,需要利用原有的廠房基礎,新規劃一條LS4-1600 +J39-1000 +J36-800 +J36-630×2 的5 序機器人沖壓線,由于原廠房為20 世紀80 年代建造的,廠房跨距小。基于用戶現場狀況,我們推薦了緊湊自動沖壓線的方案并成功實施。項目建成后,沖壓線的整線節拍最高達12SPM,該方案取得良好的技術效果。
隨著新能源汽車的發展,汽車沖壓配套市場的競爭日趨激烈,配套企業如何利用現有的條件實現自動化生產,提升沖壓生產效率,降低成本是配套企業生存和發展的關鍵。業內專家對該技術的新穎性、創造性、實用性充分認可,該技術已經獲得國家知識產權局授予的實用新型專利(一種自動沖壓線系統 ZL 2021 2 0693608.2),具有廣泛的應用前景和推廣價值。
——文章選自《鍛造與沖壓》2023年第8期

